Valérie Le Goff

Environnement Architecture Urbanisme

Aller au contenu
  • Accueil
  • Présentation
  • Actualités
  • Architecture
  • Aménagements
    • Aménagements urbains
    • Environnement
  • Planification urbaine
  • Programmation
    • Programmation architecturale
      • Accessibilité des personnes handicapées
      • Programmation d’équipements médico-sociaux
      • Programmation d’équipements socio-culturels
      • Équipements scolaires / collèges / lycées
    • Programmation urbaine
      • Etudes préalables d’aménagements de bourgs
  • Partenariats
  • Contact

Aménagements urbains

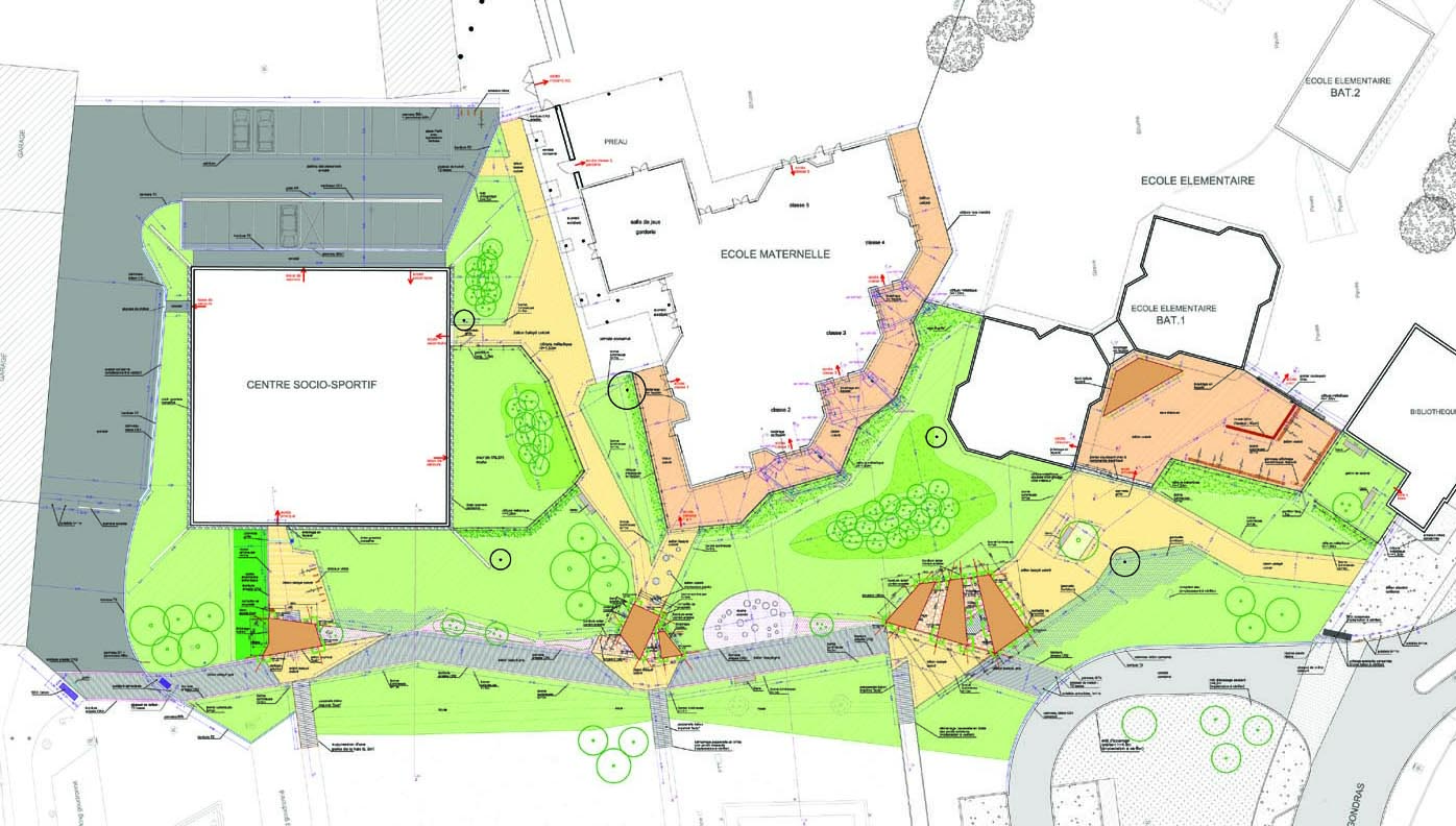
Aménagement du quartier des écoles d’Arsac (33)

Aménagement du bourg de Vaux-Rouillac (16)

Aménagement du bourg d’Ars (16)

Aménagement du Bourg de Fontet (33)

 
 

Aménagement du Bourg de Génissac (33)

Aménagement d’espaces publics à Langoiran (33)

Aménagement de la traversée de bourg de Saint-Sulpice et Cameyrac (33)

Aménagement du lotissement communal « Cœur de bourg » à Vénérand (17)

Fièrement propulsé par WordPress